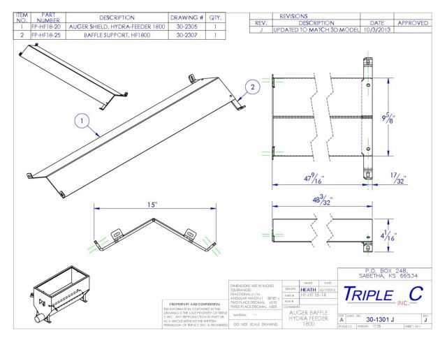
30-1301 Auger shield Hydra Feeder 1800.PDF
2013-10-07
2022-10-15
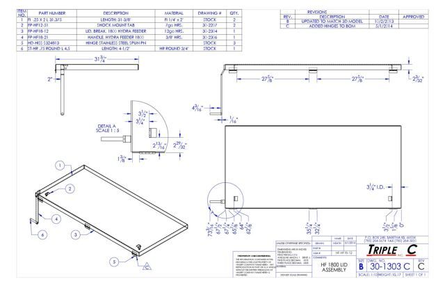
2014-05-01
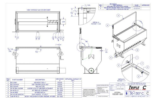
2018-08-13
2013-10-03
All Rights Reserved | HydraBed